
Понятие рабочего времени, его правовое ограничение и виды (4876)
14 апреля, 2026
КОНТРОЛЬНАЯ РАБОТА по дисциплине: «Культура речи и деловое общение» Вариант № 1 (8965)
15 апреля, 2026Проектирование автотранспортного предприятия (4877)
2000,00 ₽
Курсовой проект, предмет – производственное-техническая инфраструктура предприятия, 2015 год
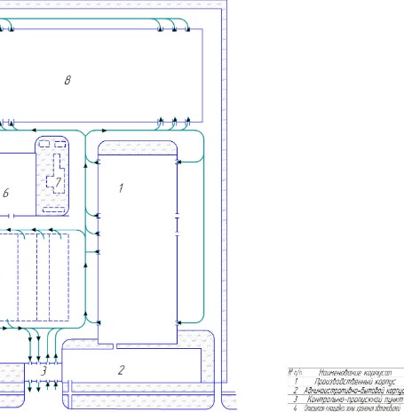
С чертежами – генплан АТП, планировка производственного корпуса, планировка участка ремонта агрегатов
Оглавление
1.1 Обоснование исходных данных. 6
1.2 Расчет программы технического обслуживания и ремонта. 8
1.2.1 Расчет периодичности технического обслуживания. 8
1.2.2 Расчет количества технических воздействий на один автомобиль за цикл. 10
1.2.3 Расчет количества воздействий за год. 11
1.2.4 Расчет количества технических воздействий за сутки. 13
1.3 Расчет объемов технических воздействий. 15
1.3.1 Корректировка нормативов трудоемкости. 15
1.3.2 Расчет объемов работ по ТО и ТР автомобилей. 15
1.3.3 Распределение объема ТО и ТР и самообслуживания по производственным зонам и участкам 17
1.4 Обоснование структуры и форм организации производства. 20
1.5 Расчет численности ремонтно-обслуживающего персонала. 21
1.5.1 Расчет фондов времени. 21
1.5.2 Расчет количества производственных рабочих. 22
1.6. Расчет линий и постов в производственных зонах и отделениях. 24
1.6.1. Расчет поточных линий ЕО,ТО-1, ТО-2. 24
1.6.2 Расчет количества постов технического обслуживания, текущего ремонта и диагностирования 25
1.7 Формирование производственной структуры технической службы АТП.. 26
1.8. Подбор технологического оборудования и оснастки для производственных зон и отделений 27
1.9 Расчет площадей производственных зон и отделений. 28
1.10 Расчет площадей складских и технических помещений. 30
2 Обоснование планировочных решений. 32
2.1 Обоснование застройки территории АТП.. 32
2.2 Обоснование планировочного решения производственного корпуса. 35
2.3 Организация и технология работы производственного отделения. 37
2.3.1. Назначение и специализация отделения. 37
2.3.2. Режим работы агрегатного участка. 41
2.3.3. Обоснование планировочного решения. 41
Исходные данные принимаем в соответствии с заданием и требованиями нормативных документов по технической эксплуатации автомобильной техники.
Значения выбранных показателей приведем в табл. 1.1
Таблица 1.1 – Исходные данные и условия проектирования АТП
| Показатель | Значение |
| 1 Тип предприятия | Грузовое (перевозка строительных грузов) |
| 2. Марка подвижного состава по группам | |
| I группа КамАЗ-53215 | 84 |
| П группа КамАЗ 55111 | 145 |
| 3. Категория условий эксплуатации подвижного состава | П |
| 4. Среднесуточный пробег, км, Lсс: I группа КамАЗ-53215 | 258 |
| П группа КамАЗ 55111 | 374 |
| 5. Природно-климатические условия | Умеренный |
| 6. Режим работы: подвижного состава, Дрг | 305 дней |
| производственных подразделений, Дрг | 305 |
| 7. Нормативы периодичности: ТО – 1, L”1 | 4000 км |
| ТО – 2, L”2 | 16000км |
| КР, L”кр | 300000км |
| 8. Нормативы трудоемкости | |
| Для I группы: ЕО, | 0,35 чел. ч. |
| ТО – 1, | 3,4 чел. ч. |
| ТО – 2, | 14,5 чел. ч. |
| ТР, | 8,5 чел. ч /1000 км |
| Для П группы: ЕО, | 0,35 чел. ч. |
| ТО – 1, | 3,4 чел. ч. |
| ТО – 2, | 14,5 чел. ч. |
| ТР, | 8,5 чел. ч /1000 км |
| 9. Продолжительность простоя в ТО и ТР, Д то – тр | 0,50 дн/1000 км |
| 10. Продолжительность простоя в КР, Д кр | 22 дн. |
| 11. Время транспортировки в КР | 2 дн. |
Понятие рабочего времени, его правовое ограничение и виды (4876)





